**Echtes Penthouse ** Exklusives Wohngefühl – 2 Terrassen & Dachterrasse & Balkon ** 2 Bäder ** Blick auf Kaiserwasser **Einziehen & das Leben genießen **
- 1.190.000 €
Beschreibung
Die Liegenschaft – mit Blick auf das Kaiserwasser – befindet sich in Kaisermühlen, einem der attraktivsten Stadtviertel Wiens, welche aufgrund seiner zentralen Lage mit ausgezeichneter Anbindung an den öffentlichen Verkehr sowie einer Vielzahl an Erholungsgebieten in unmittelbarer Umgebung sehr beliebt ist.
Die U-Bahn-Station „Kaisermühlen VIC“ der Linie U1 ist unter 8 Minuten fußläufig erreichbar, von denen Sie direkt ins Zentrum der Stadt gelangen!
Umliegend bietet Ihnen die ruhige und grüne Umgebung, insbesondere mit dem Kaiserwasser und dem
Gänsehäufl, der Alten Donau, der Donauinsel, sowie der Neuen Donau – alle fußläufig erreichbar, quasi vor Ihrer
Haustür – die besten Erholungsgebiete der Stadt und ermöglicht ein Wohnen am Wasser mitten in der Stadt.
Das Donauzentrum ist gut angebunden und bietet umfangreiche Einkaufsmöglichkeiten.
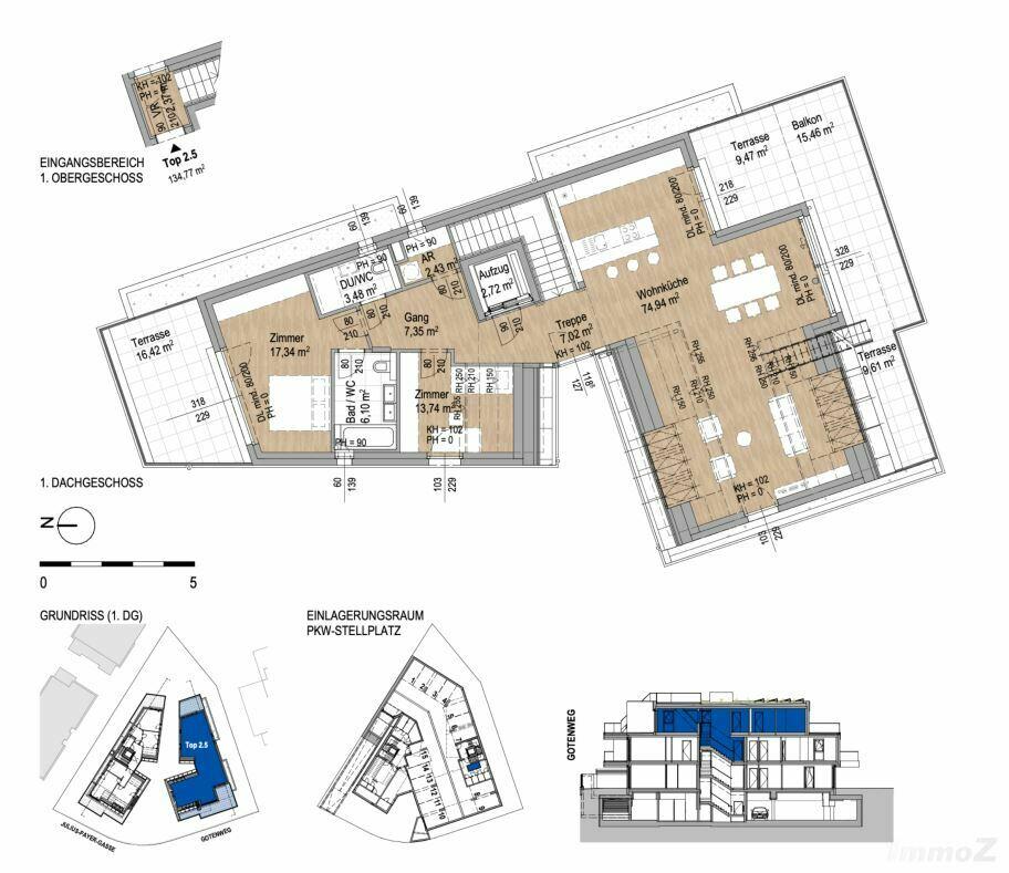
Facts Wohnen & Aufteilung für Sie zusammengefasst
- Wohnfläche: ca. 135,04 m²
- ca. 75m² großer Wohn-Essbereich mit Küche & großflächigen Fensterfronten
- Masterbedroom mit eigenem Wellnessbad & eigener ca. 17m² großen Terrasse
- Gäste-Kinder-Arbeitszimmer mit ca. 14m²
- 2 Terrassen 1 Dachterrasse & 1 Balkon
- Terrassenfläche insgesamt ca. 89m²
- Lift direkt ins Penthouse
- 2 Bäder
- ein Bad mit Walk In Dusche und Fenster
- ein Bad mit mit Wanne und Fenster
- Abstellraum
- 75m² Livingroom
- Terrassen und Balkon mit Edelstahlgeländer und Verglasung
- Master Bedroom mit 17m² Terrasse & Wellnessbad
- weiteres Zimmer mit 13,74m² (Kinder- Gäste-Arbeitszimmer)
- Dachterrasse ca. 35m²
Ausstattung & Bauweise für Sie zusammengefasst
- Energieeffiziente Gebäudehülle in Massivbauweise
- Fußbodenheizung bzw. Bodenkühlung über Sole Wärmepumpe
- Beschattung mit elektrischen Raffstore
- Moderne Architektur – großflächige Glasflächen
- Bodenkühlung im Erd- und Obergeschoss durch die Wärmepumpe sowie Kühlung durch
- Klimaanlage mit Splitgeräten im OG und Dachgeschoß
- Echtholz-Dielen-Parkett
- Feinsteinzeugfliesen in Großformat 60×60 (Boden)
- PKW Tiefgaragenplatz (separate Kaufmöglichkeit)
- Grünruhelage
- Terrasse mit Außenwasseranschluss & Strom & Beleuchtung
- Feinsteinzeugboden auf Terrasse
- Geländer aus Edelstahl mit VSG Verglasung
- Abstellraum
- Klimaanlage
- Kunststoff- Alu Fenster 3 Fach verglast
- Vollwärmeschutzfassade mit Kunsthartzreibputz
- Begrüntes Flachdach
- Dachterrasse mit ca. 34m²
**Resümee**
Dieses Penthouse vereint urbanen Luxus mit stilvoller Architektur und beeindruckenden Ausblicken über Wien. Hochwertige Ausstattung, lichtdurchflutete Räume und eine großzügige Dachterrasse machen es zu einer einzigartigen Wohnimmobilie für höchste Ansprüche.
Penthouse mit Stil und Aussicht – wo wohnen zum Erlebnis wird!
Weitere Infos senden wir Ihnen gerne auf Anfrage zu.
KI-unterstützt
✔ Ruhelage
✔ in einem der attraktivsten Stadtvierteln Wiens
✔ zentrale Lage
✔ ausgezeichnete Anbindung an den öffentlichen Verkehr
✔ Vielzahl an Erholungsgebieten
✔ U-Bahn-Station „Kaisermühlen VIC“ der Linie U1 ist unter 8 Minuten fußläufig erreichbar, von denen Sie direkt ins Zentrum der Stadt gelangen!
✔Energieeffiziente Gebäudehülle in Massivbauweise
✔Fußbodenheizung/ Boden Kühlung über Sole Wärmepumpe
✔Inkludierte Beschattung mit Raffstore elektrisch
✔Außergewöhnliche Architektur durch großzügige Verglasungsflächen
✔Bodenkühlung im Erd- und Obergeschoss durch die Wärmepumpe sowie Kühlung durch
✔Klimaanlage mit Splitgeräten im OG und Dachgeschoß
✔Echtholz Dielen Parkett
✔Feinsteinzeugfliesen in Großformat 60×60 (Boden)
✔PKW Tiefgaragenplatz (separate Kaufmöglichkeit)
✔Grünruhelage
✔Terrasse mit Außenwasseranschluss
✔Feinsteinzeugboden auf Terrasse
✔Geländer aus Edelstahl mit VSG-Verglasung
✔Badewanne
✔Walk In Dusche
✔Abstellraum
✔Klimaanlage
✔Kunststoff- Alu Fenster 3 Fach verglast
✔Vollwärmeschutzfassade mit Kunsthartzreibputz
✔Begrüntes Flachdach
✔Dachterrasse nach Süden
✔Lift ins Penthouse – privat
und vieles mehr ….!
Details
-
Objektnummer O2100165772
-
Preis 1.190.000 €
-
Wohnfläche 135 m²
-
Zimmer 3
-
Badezimmer 2
-
Baujahr 2022
-
Objektart Penthouse-Wohnung
-
Status Zu Verkaufen
Weitere Details
-
Etage 2
-
Top-Nummer 5
-
Bezirk Wien
-
Stadtbezirk 22. Donaustadt
-
Lage W Osten
-
Käuferprovision 3,6 % inkl. 20% MwSt. vom Gesamtkaufpreis
-
Wohnfläche 135,04 m²
-
Gesamtfläche 135,04 m²
-
Balkone 1
-
Balkonfläche 15 m²
-
Terrassen 3
-
Terrassenfläche 70 m²
-
Anzahl Stellplätze 1
-
Kellerfläche 7 m²
-
Wohneinheiten 5
-
Heizart Erdwärme
-
Bodenbelag Parkett
-
Badausstattung Dusche, Badewanne, Fenster
-
Küche komplett
-
Stellplatzart Tiefgarage
-
Fenster-Material Kunststoff/Alu
-
Türen Holz
-
Waschmaschinenanschluss ja
-
Separates WC 1
-
Zustand Erstbezug
-
Immobilie ist verfügbar ab ab sofort
Adresse
Auf Google Maps anzeigen-
Stadt: Wien
-
Bundesland: Wien
-
PLZ: 1220
-
Land: Österreich
Kreditrechner
Monatlich
-
Anzahlung
-
Kreditbetrag
-
Monatliche Rate
Ähnliche Immobilien
- Penthouse-Wohnung
- 1.099.000 €

