Beschreibung
Gastrolokal in Gratkorn sofort zu übernehmen.
Für nähere Informationen stehen wir Ihnen gerne zur Verfügung und freuen uns auf Ihre Anfrage.
Details
-
Objektnummer O2100164724
-
Preis 3.395 €
-
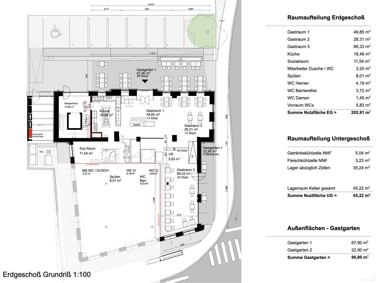
Wohnfläche 245 m²
-
Zimmer 1
-
Objektart Gastronomie
-
Status Zu Vermieten
Weitere Details
-
Top-Nummer Top EG 1
-
Bezirk Graz Umgebung
-
Lage GU Norden
-
Nettokaltmiete 3.394,99 €
-
Miete inkl. BK und Ust. 3.394,99 €
-
Heizkosten in Warmmiete enthalten nein
-
Gesamtmiete 3.394,99 €
-
Gesamtkosten 3.394,99 €
-
Mieterprovision 3 BMM zzgl. 20% MwSt.
-
Hinweise zu den Preisen netto/m² zzgl. BK, HK und gesetzl. MwSt.
-
Vergebührung nach Vertragsdauer
-
Kaution BMM Überweisung
-
Gesamtfläche 245 m²
-
Ladenfläche 200 m²
-
Lagerfläche 45 m²
-
Terrassen 2
-
Terrassenfläche 90 m²
-
Anzahl Stellplätze 1
-
Immobilie ist verfügbar ab ab sofort
Adresse
Auf Google Maps anzeigen-
Stadt: Gratkorn
-
Bundesland: Steiermark
-
PLZ: 8101
-
Land: Österreich
Kreditrechner
Monatlich
-
Anzahlung
-
Kreditbetrag
-
Monatliche Rate
Ähnliche Immobilien
- Gastronomie
- 1.450 €

