ERSTBEZUG- ALTBAUETAGE mit SCHLOSSBERGBLICK, 2.OG mit LIFT !!! Bestlage nähe Augartenpark, Murpromenade und Innenstadt, **RARITÄT**, 4 Balkone,2 Eingänge, **Förderung**
- 812.457 €
Beschreibung
Diese Altbau-Rarität entsteht aktuell im Zuge einer umfassenden Generalsanierung und wird in wenigen Monaten zu den schönsten Wohnungen zählen, die man im Bezirk überhaupt finden kann.
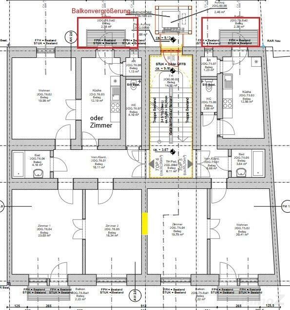
2 Wohnungen werden zu einer Etage zusammengelegt !! Die 2 Wohnungseingänge bleiben bestehen.
Der Kaufpreis setzt sich aus einem Betrag von 812.457,20 € und der Übernahme von einem Landesdarlehen (umfassende Sanierung) in der Höhe von 265.960,80 € zusammen = Kaufpreis 1.074.426,96 € (von dem Förderungsbetrag braucht man 45%, unter Einhaltung der Förderrichtlinien, nicht zurückzahlen, also nur 146 278 €). Dadurch gegeben sich 958.735,20 €.
Es stehen mehrere Wohnungen in diesem schönen Altbauhaus zur Verfügung:
Wohnungsgrößen von 63,35 bis 104,08 m², oder man kann auch noch eine gesamte ETAGE (2 WE) mit insgesamt ca. 158 m² -167,33 vom 1 OG – 4 OG erwerben.
auch als Büro, Ordnination oder Wohnbüro geeignet !!
Die ruhige Seitengasse, direkt neben dem Augartenpark, vermittelt eine besondere Wohnatmosphäre: urban, aber entspannt – zentral, aber geschützt.
Die Raumhöhe von ca. 3m verleiht jedem Bereich Großzügigkeit, Eleganz und eine Leichtigkeit, die nur in Gebäuden dieser Epoche zu finden ist.
Die originalen Altbau-Flügeltüren werden erhalten bzw. hochwertig erneuert und bilden das stilistische Herzstück der Wohnung. Ihre klassische Formensprache, ihre Höhe und Eleganz sorgen dafür, dass jeder Raum eine repräsentative Wirkung bekommt.
Hochwertige Parkett– bzw. Dielenböden vollenden die Luxusausstrahlung dieser Immobilie!
Highlights auf einen Blick:
• Wohnfläche: 158,31 m² (2 WE werden zusammengelegt)– perfekt geschnitten, zeitlos elegant
• Luftige Raumhöhe von ca. 3 m
Ein Raumgefühl, das man nur im echten Altbau bekommt – großzügig, repräsentativ, edel.
2 West-Balkone mit ca. 11,25 m² Nutzfläche und 8,8 m² – Sonnenuntergänge inklusive,
in den Geschoßen 1-2 gibt es noch 2 straßenseitige Balkone.
- 6 Zimmer + Küche
- 2 WC s
- 2 Badezimmer
Alle Räume mit idealer Größe, perfekter Möblierbarkeit und einzigartiger Altbauausstrahlung – betont durch elegante Flügeltüren, die den Stil dieser Rarität harmonisch unterstreichen. • Separate Wohnküche (ca. 12,71 m²)
- Großzügiger Raum mit Platz für Esstisch
- Zugang zu 2 Abstellräumen (ca. 1,80m² und 1,06m²)
- Direkte Zugänge zu den Balkonen – perfekter Übergang zwischen Innen & Außen
• Edle Parkett- & Dielenböden
Feinste Materialien, die Altbauflair und Modernität perfekt verbinden.
• Bäder mit großflächigen, modernen Fliesen
Hochwertig, zeitlos, perfekt abgestimmt.
• Alle Leitungen neu
Elektrik, Sanitär, Heizung – alles wird modernisiert.
Das bedeutet: Jahrzehntelange Sicherheit, Komfort und Wertbeständigkeit.
• Auf individuelle Wünsche kann Rücksicht genommen werden
Wer früh genug entscheidet, hat jetzt noch die Möglichkeit, Details nach eigenen Vorstellungen zu gestalten.
Eine Freiheit, die bei Altbauwohnungen fast nie möglich ist.
Sanierungsbeginn Frühjahr 2026
Lage – und zwar eine, die man nicht toppen kann
Ruhige Seitengasse unmittelbar beim Augartenpark
Perfekte Infrastruktur und urbane Lebensqualität
Technische UNI, Nahversorgung, Gastronomie, Straßenbahn, Radwege – alles in Gehweite
Eine Lage, die in Graz dauerhaft zu den begehrtesten zählt
Wer hier wohnt, weiß: der Augarten ist nicht irgendein Park – er ist ein Lebensgefühl.
Details
-
Objektnummer O2100167505
-
Preis 812.457 €
-
Wohnfläche 158 m²
-
Zimmer 6
-
Badezimmer 1
-
Baujahr 1911
-
Objektart Wohnung
-
Status Zu Verkaufen
Weitere Details
-
Heizungsart Fernheizung
-
Etage 2
-
Top-Nummer 5+6
-
Bezirk Graz
-
Stadtbezirk VI. Jakomini
-
Lage G Zentrum
-
Käuferprovision 3 % zzgl. 20% MwSt.
-
Wohnfläche 158,31 m²
-
Gesamtfläche 158,31 m²
-
Separate WCs 1
-
Balkone 4
-
Balkonfläche 20 m²
-
Wohneinheiten 12
-
Heizart Fernwärme
-
Bodenbelag Parkett
-
Fenster-Material Holz
-
Türen Holz
-
Waschmaschinenanschluss ja
-
Zustand Erstbezug
-
Letzte Modernisierung 2026
Adresse
Auf Google Maps anzeigen-
Stadt: Graz
-
Bundesland: Steiermark
-
PLZ: 8010
-
Land: Österreich
Kreditrechner
Monatlich
-
Anzahlung
-
Kreditbetrag
-
Monatliche Rate
Ähnliche Immobilien
- Wohnung
- 300.603 €
- Wohnung
- 307.000 €
- Wohnung
- 299.633 €
- Wohnung
- 184.900 €

