HONORARFREI **ANLEGER AUFGEPASST **Gartenhit ** Exklusives Wohngefühl – Erstbezug in wunderbarer Lage ** Einziehen & das Leben genießen **
- 330.355 €
Beschreibung
In einer der beliebtesten Wohnlagen südlich von Graz, wo Ruhe, Natur und urbaner Komfort aufeinandertreffen, befindet sich diese exklusive, kleine Wohnanlage mit nur sechs Einheiten – ein Zuhause für Menschen, die das Besondere suchen.
Die hier angebotene Wohnung befindet sich im Erdgeschoss und überzeugt nicht nur durch ihre hochwertige und energieeffiziente Ausstattung, sondern auch durch ihren durchdachten Grundriss, viel Sonnenlicht und ein herrlich entspanntes Wohngefühl ..!
Beim Betreten der Wohnung eröffnet sich ein modernes, luftiges Ambiente mit klaren Linien und viel Tageslicht.
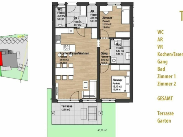
Im Mittelpunkt steht der großzügige Wohn-Essbereich mit rund 35 m², der nicht nur Platz für Kochen und Entspannen bietet, sondern auch durch die große Glasfront direkten Zugang auf den ca. 13 m² große Terrasse und ca. 46m² großen Garten schafft – ein Lieblingsplatz für Frühstück im Freien, entspannte Abende oder sonnige Lesestunden.
Zwei getrennt begehbare Schlafzimmer mit ca. 11,3 m² und 12 m² bieten Rückzugsorte für Familie, Gäste oder Homeoffice. Das Badezimmer sowie das separate WC sorgen für hohen Wohnkomfort und Alltagstauglichkeit.
Facts Wohnen & Aufteilung für Sie zusammengefasst
- Wohnfläche: ca. 76 m²
- Großzügiger, offener Wohn-/Essbereich mit voll ausgestatteter Küche
- Zwei helle, getrennt begehbare Schlafzimmer
- Badezimmer und WC getrennt für mehr Alltagstauglichkeit
- 13 m² Terrasse und
- ca. 46m² Eigengarten mit südwestlicher Ausrichtung – ideal für Sonnenstunden
- Carport-Abstellplatz möglich KP € 9.680,– netto
- AP im Freien möglich KP € 6.160,– netto
Mietzinsaufstellung:
- HMZ € 912,00,–
- Carport € 41,67,–
- AP € 25,00,–
- Küche € 63,33,–
- Gesamt € 1.042,00,– monatliche Mieteinnahme kalt
- Befristung 3 Jahre (endet am 31. Jänner 2028)
Ausstattung & Bauweise für Sie zusammengefasst
- Hochwertiger Eichenparkett von Weitzer Parkett in Wohn- und Schlafräumen
- Fußbodenaufbau mit Trittschalldämmung – spürbar leiser Wohnkomfort
- Energieeffiziente Fußbodenheizung mit Luftwärmepumpe, automatisch außentemperaturgesteuert
- Zentrale Warmwasseraufbereitung
- Kalkputz in Nassräumen, glatter Gipsputz in allen anderen Wohnbereichen
- Kunststofffenster mit 3-fach-Verglasung und eleganten Helopal-Fensterbänken
- Elektrische Rollos als hochwertiger Sicht- und Sonnenschutz
- Zugang über eine Außentreppe mit Laubengang – offene, luftige Architektur
- Klassisches Satteldach mit dauerhafter Ziegeleindeckung
- Strom- und Wasseranschluss auf der Terrasse
**Resümee**
Diese charmante Neubauwohnung bietet eine hervorragende Invetitionsmöglichkeit für Kapitalanleger, die auf nachhaltige Weiterentwicklung und solide Vermietbarkeit setzen. Die moderne Architektur, hochwertige Ausstattung sowie der durchdachte Grundriss mit einer sonnigen Terrasse sprechen eine breite Zielgruppe an – von Singles über junge Paare bis hin zu kleinen Familien. Helle Räume und ein hoher Wohnkomfort machen diese Immobilie zu einer renditestarken Kapitalanlage mit Zukunft.
Jetzt investieren & von stabilen Mieteinnahmen profitieren!
Weitere Infos senden wir Ihnen gerne auf Anfrage zu.
KI-unterstützt
✔ Nur wenige Minuten zur Shopping City Seiersberg
✔ Schnelle Anbindung an die A2 & A9 (Graz-West)
✔ Kurze Wege nach Graz – ideal für Pendler
✔ Bushaltestelle in Gehnähe
✔ Nahversorger, Ärzte, Schulen und Kindergärten fußläufig erreichbar
✔ Grünes Wohnumfeld mit hoher Lebensqualität
✔ Beliebte Wohnlage in Seiersberg-Pirka
✔ Neubauwohnung in kleiner Anlage mit nur 6 Einheiten
✔ Erster und letzter Stock
✔ Ca. 76 m² Wohnfläche mit durchdachtem, offener Grundriss
✔ Zwei getrennt begehbare Schlafzimmer (ca. 11,3 m² & 12 m²)
✔ Große ca. 12 m² Terrasse & ca. 46m² Eigengarten
✔ Separates Bad und WC für mehr Komfort
✔ Carport- und/ oder Autoabstellplatz im Freien möglich
✔ Ziegelmassivbauweise mit hochwertigen Wienerberger Ziegeln
✔ Fußbodenheizung mit energieeffizienter Luftwärmepumpe
✔ Hochwertiger Eichenparkettboden (Weitzer Parkett)
✔ Kunststofffenster mit 3-fach-Verglasung und Helopal-Fensterbänken
✔ Elektrische Rollos als Sonnenschutz
✔ Kalkputz in Nassräumen und glatter Gipsputz in Wohnräumen
✔ Satteldach mit klassischer Ziegeleindeckung
und vieles mehr ….!
Details
-
Objektnummer O2100165651
-
Preis 330.355 €
-
Wohnfläche 76 m²
-
Zimmer 3
-
Badezimmer 1
-
Baujahr 2024
-
Objektart Wohnung
-
Status Zu Verkaufen
Weitere Details
-
Top-Nummer 2
-
Bezirk Graz
-
Stadtbezirk XVI. Straßgang
-
Lage G Süden
-
Käuferprovision HONORARFREI
-
Hinweise zu den Preisen exkl. gesetzl. MWSt.
-
Wohnfläche 76 m²
-
Gesamtfläche 76 m²
-
Separate WCs 1
-
Balkone 1
-
Balkonfläche 12 m²
-
Anzahl Stellplätze 1
-
Kellerfläche 7 m²
-
Wohneinheiten 6
-
Heizart Luft-Wärmepumpe
-
Bodenbelag Parkett
-
Badausstattung Dusche, Fenster
-
Küche leer
-
Stellplatzart Carport
-
Fenster-Material Kunststoff
-
Türen Holz
-
Waschmaschinenanschluss ja
-
Separates WC 1
-
Zustand Erstbezug
-
Immobilie ist verfügbar ab ab sofort
Adresse
Auf Google Maps anzeigen-
Stadt: Seiersberg
-
Bundesland: Steiermark
-
PLZ: 8054
-
Land: Österreich
Kreditrechner
Monatlich
-
Anzahlung
-
Kreditbetrag
-
Monatliche Rate
Ähnliche Immobilien
- Wohnung
- 337.216 €
- Wohnung
- 349.900 €
- Wohnung
- 0
- Wohnung
- 525.000 €

